1500 kVA Kushin Haɓakawa Farashin-0.6 / 13.8 kV|Amurka 2025
Yawan aiki: 1500 kVA
Wutar lantarki: 13.8GrdY/7.97-0.6Y/0.346kV
Fasalin: tare da bushings tsaka tsaki na LV guda biyu

Injiniyan Ƙarƙashin Ƙarƙashin Ƙarfafawa: Sabunta Grid ɗinku tare da Pad Pad ɗin Mu na Mataki Uku{0}Mounted Transformer.
01 Gabaɗaya
1.1 Bayanin Aikin
1500 kVA three phase pad mounted transformer an isar da ita zuwa Kanada a cikin 2025. Ƙarfin wutar lantarkin shine 1500 kVA tare da sanyaya KNAN. Babban ƙarfin lantarki shine 13.8GRDY / 7.97 kV tare da ± 2 * 2.5% tapping range (NLTC), ƙananan ƙarfin lantarki shine 0.6Y / 0.346 kV, sun kafa ƙungiyar vector na YNyn0.
Wannan -kushin lokaci guda - da aka ɗora wutar lantarki an ƙirƙira shi ne don rarraba wutar lantarki mai girma, yana amfani da mai FR3 na halitta ester mai dacewa da muhalli kuma an ƙirƙira shi da K- na 4 don ɗaukar kaya masu jituwa{6}}. Yana da cikakkiyar tsarin kariya gami da allon ƙasa na ciki tsakanin iska da hadedde masu kama walƙiya. Babban gefen wutar lantarki - an sanye shi da 600A gaɗaɗɗen toshe{11}}a cikin tsarin bushewa da wani keɓantaccen daji mai tsaka tsaki tare da 2-rami spade- nau'in jan karfe. Ƙarƙashin gefen wutar lantarki{18} yana aiki da resin bushings tare da taron mashaya tagulla mai ramuka 10 kuma ya haɗa da keɓaɓɓun daji guda biyu. Bugu da ƙari, an haɗa shi da bushings na ƙasa guda biyu: ɗaya don allon ƙasa na HV-LV da wani don haɗin tsaka tsaki. Naúrar tana da kariya ta bargon nitrogen kuma an gama shi a cikin daidaitaccen kayan aikin Green (Munsell 9 GY 1.5/2.6) don karɓuwa da juriya na lalata.
1.2 Ƙayyadaddun Fasaha
1500 kVA kushin da aka ɗora nau'in ƙayyadaddun bayanai da takaddun bayanai
|
Isarwa zuwa
Amurka
|
|
Shekara
2025
|
|
Nau'in
Tashin wutar lantarki
|
|
Daidaitawa
IEEE C57.12.34
|
|
Ƙarfin Ƙarfi
1500 kVA
|
|
Yawanci
60HZ
|
|
Mataki
3
|
|
Ciyarwa
Madauki
|
|
Gaba
Matattu
|
|
Nau'in Sanyi
KNAN
|
|
Babban Voltage
13.8GRDY/7.97kV
|
|
Na biyu Voltage
0.6Y/0.346 kV
|
|
Abubuwan Iska
Aluminum
|
|
Matsala ta kusurwa
YNyn0
|
|
Impedance
5.75%
|
|
inganci
DOE2016,99.48%
|
|
Matsa Canji
Farashin NLTC
|
|
Taɓa Range
±2*2.5%
|
|
Babu Asara Load
1.6 kW
|
|
Akan Rasa Load
10.27 kW
|
1.3 Zane
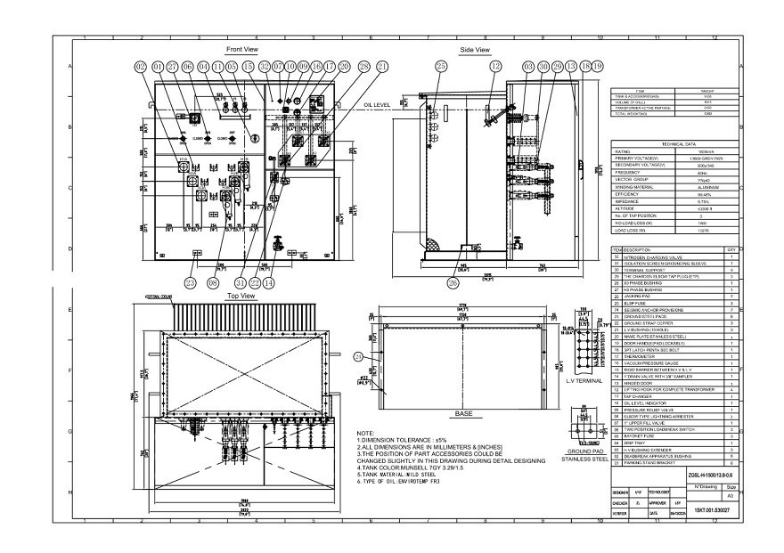
1500 kVA kushin da aka ɗora zane da girman hoto.
![]() |
![]() |
02 Masana'antu
2.1 Kori
Mataki na uku {{0}, biyar - ginshiƙi na wannan kushin{2} da aka ɗora tasfoma an yi shi ne daga manyan laminations na silicon karfe. Zanensa na musamman yana da manyan gaɓoɓin gaɓoɓi guda uku don gidaje nau'ikan iska guda uku, gefen wasu ƙarin gaɓoɓin karkiya biyu na waje. Wannan tsarin yana ba da ƙaramin-hanyar ƙin yarda don juzu'in maganadisu masu jituwa na uku, yadda ya kamata yana rage asara{7}} da hayaniya. Bugu da ƙari, yana ƙara haɓaka ƙarfin taransfoma don jure nauyin nauyi marasa daidaituwa da sarrafa igiyoyin jituwa.

2.2 Guda

Na'urar taswira tana fasalta bambance-bambancen ƙirar iska don babba da ƙananan ƙarfin lantarki. Ƙarƙashin wutar lantarki - yana amfani da foil na jan karfe, wanda ke ba da kyakkyawan gajeriyar jurewar ƙarfi da ingantaccen yanayin zafi saboda babban filinsa da tsarin iska ɗaya. An gina babban iskar wutar lantarki - tare da rauni na waya na aluminium, yana haɓaka ingancin sarari, haɓaka rarraba wutar lantarki mai ƙarfi, da ƙara ɗumamar zafi. Dukkanin iskoki guda biyun busassu ne kuma an shafe su da mai, sannan a haɗe su cikin amintaccen tanki mai ƙarfi, yana tabbatar da ƙarfin injina mai ƙarfi, raguwar asara, da amincin aiki na dogon lokaci.
2.3 Tanko
An gina tankin daga babban -ƙarfi, lalata{1}}ƙarfe don tabbatar da dorewa da tsawon rayuwar sabis a muhallin waje. An rufe shi ta hanyar hermetically don hana shigar danshi kuma a cika shi da mai mai hana ruwa wanda ke samar da rufin lantarki da ingantaccen sanyaya. Tankin yana fasalta ƙirar bangon bangon da aka ƙarfafa, yana ba shi damar jure juzu'in matsa lamba na ciki da matsalolin injina yayin da yake riƙe ƙaƙƙarfan sawun ƙafa. Bugu da ƙari, an sanye shi da filaye masu sanyaya na waje don haɓaka ɓarkewar zafi, tabbatar da aiki mai ƙarfi a ƙarƙashin yanayi daban-daban. Na'urorin haɗi kamar na'urorin taimako na matsa lamba, cika bawuloli, da fakitin ƙasa an ɗora su gaba ɗaya don aminci da aiki.

2.4 Taron Karshe

Taro na ƙarshe ya ƙunshi daidaitaccen haɗin kai da haɗakar coil, mai sanyaya mai, da duk kayan haɗi masu mahimmanci a cikin guda ɗaya, mai ƙarfi. Cikakken rauni da busasshiyar cibiya -ana saukar da taro na coil a hankali a cikin wani tanki mai rufaffiyar, lalata{2}}, wanda sai a cika shi da mai mai sanyaya wuta don kawar da duk wani danshi ko iska. Mahimman abubuwan da aka gyara kamar su radiators na waje, na firamare da na sakandare, masu canza famfo, na'urorin agajin matsa lamba, da wayoyi masu kariya suna hawa sosai kuma suna haɗa su. Dukkanin taron an sanya shi a cikin wani shinge mai kullewa, shingen ƙarfe mai hana yanayi wanda aka tsara don aminci, dorewa, da shigarwa kai tsaye a cikin yanayin waje, kammala ƙayyadaddun ƙayyadaddun rarraba wutar lantarki.
03 Gwaji
|
A'a. |
Gwajin Abun |
Naúrar |
Dabi'un Karɓa |
Ƙimar Ma'auni |
Kammalawa |
|
1 |
Ma'aunin Juriya |
% |
Matsakaicin juriya rashin daidaituwa |
2.68 |
Wuce |
|
2 |
Gwajin Rabo |
% |
Bambancin rabon ƙarfin lantarki akan babban tapping: ƙasa da ko daidai da 0.5% Alamar haɗi: YNyn0 |
-0.04% ~ 0.02% |
Wuce |
|
3 |
zango{0}}gwajin dangantaka |
/ |
YNyn0 |
YNyn0 |
Wuce |
|
4 |
A'a -asara da tashin hankali na halin yanzu |
/ |
I0 :: bayar da ma'auni darajar |
0.29% |
Wuce |
|
P0: bayar da ƙima (t:20 digiri) |
1.563 kW |
||||
|
juriyar rashin hasara shine +10% |
/ |
||||
|
5 |
Load hasarar impedance ƙarfin lantarki da inganci |
/ |
t:85 ku haƙuri ga impedance shine ± 7.5% juriyar jimlar asarar kaya shine +6% |
/ |
Wuce 合格 |
|
Z%: ƙimar da aka auna |
5.95% |
||||
|
Pk: ƙimar ƙima |
9.867 kW |
||||
|
Pt: ƙima mai ƙima |
11.430 kW |
||||
|
Ingancin ba kasa da 99.48% |
99.50% |
||||
|
6 |
Gwajin Karfin Wutar Lantarki |
kV |
LV: 10kV 60s |
Babu rushewar ƙarfin gwajin da ke faruwa |
Wuce |
|
7 |
Jarrabawar Juriya da Wutar Lantarki |
kV |
Wutar lantarki mai aiki (KV):2Ur |
Babu rushewar ƙarfin gwajin da ke faruwa |
Wuce |
|
Duration(s):48 |
|||||
|
Mitar (HZ): 150 |
|||||
|
8 |
Gwajin Leaka |
kPa |
Aiwatar da matsa lamba: 20kPA |
Babu yabo kuma babu Lalacewa |
Wuce |
|
Tsawon lokaci:24h |
|||||
|
9 |
Ma'aunin Resistance Insulation |
GΩ |
HV{0}LV zuwa Ground: |
0.887 |
/ |
|
LV -HV zuwa Ground: |
1.14 |
||||
|
HV&LV zuwa Ground |
0.623 |
||||
|
10 |
Gwajin bugun walƙiya |
kV |
cikakken igiyar ruwa |
Babu rushewar ƙarfin gwajin da ke faruwa |
Wuce |


04 Shiryawa da jigilar kaya
4.1 Shiryawa
Da farko sai a dora jakar foil din kwano a kan transfoma sannan a rufe tafsirin da shi. Saka kayan bushewa a cikin jakar foil ɗin kwano, sannan rufe jakar yayin barin buɗewa. Yi amfani da injin tsabtace ruwa don fitar da iskar gas daga cikin jakar ta wannan buɗaɗɗen, sa'an nan kuma rufe buɗewar da injin rufewa. Bayan haka, shigar da masu kariya na kusurwa a kusa da na'ura (kayan kariya na kusurwa na iya zama kumfa, filastik ko kwali masu kariya, kuma masu kare kusurwar kwali an yi su ne da kwali na musamman da aka danna), kuma kunsa mai canzawa tare da fim mai kariya. A ƙarshe, aiwatar da marufi na waje na katako, kuma akwatin katako ya kamata a fesa tare da alamun cokali mai yatsa da tsakiyar alamun nauyi.
4.2 Shipping
Za a aika da taransfoma a ƙarƙashin sharuɗɗan DDU (Ba a biya ba) zuwa makoma ta ƙarshe. Na'urar taswira, wanda aka kebe amintacce kuma an toshe shi a cikin kwandon jigilar kayayyaki na teku don hana motsi, za a yi jigilar ta ta hanyar haɗin jigilar teku da jigilar manyan motoci ta ƙarshe. Mai siyarwa yana ɗaukar duk haɗari da farashi, gami da sufuri na cikin gida, izinin fitarwa, jigilar teku ta ƙasa da ƙasa, izinin shigo da kaya, duk haraji/haraji masu dacewa (ban da harajin shigo da Amurka, waɗanda ke na asusun mai siye a kowane sharuɗɗan DDU), isar da hanya ta ƙarshe, da cikakken ɗaukar hoto. Ana kammala isarwa ne kawai lokacin da aka sauke naúrar lafiya kuma an gabatar da shi a wurin da aka keɓe a adireshin inda aka nufa.
05 Yanar Gizo da Takaitawa
A matsayin babban ɓangaren hanyoyin sadarwa na rarrabawa na zamani, na'urorin mu guda uku-kushin ɗorawa{1}masu tafsiri suna haɗe da ƙira mai ƙarfi, ƙwararrun ƙwararru, da tsantsar gwaji don tabbatar da dogon lokaci, ingantaccen aiki a wurare daban-daban kuma masu buƙata. Mun himmatu wajen isar da kayayyaki ba kawai ba, amma jimlar hanyoyin magance wutar lantarki da cikakken tallafin fasaha na rayuwa. Zaɓin hanyoyin magance mu yana nufin saka hannun jari a cikin aminci, inganci, da dorewa{6}}ƙarfafawa ku don gina mafi juriya da tsarin rarraba hankali.

Hot Tags: Farashi Mai Canza Pad, Maƙera, Mai kaya, farashi, farashi
You Might Also Like
2500 kVA Uku Pad -wanda aka ɗora Transformer-13.8/0....
75 kVA Kushin Dutsen Mai Canjawa-22.86 / 0.208 kV|Am...
500 kVA Kushin Haɓaka Mai Canjin Lantarki-34.5 / 0.4...
500kVA Kushin Dutsen Mai Canjawa-14.4 / 0.208 kV|Amu...
1000 kVA Kushin Haɗa Mai Canjawa-13.2 / 0.48 kV|Amur...
1500 kVA Kushin Haɓaka Farashin Canji-23.9 / 0.416 K...
Aika Aikace-aikacen











